A unique strata circa 1880 Terrace boasting 4.8-5.1 meter width and wonderful scope to renovate to your own style and taste. Supremely liveable as is and ultra convenient, being near the heart of Surry Hills Village.
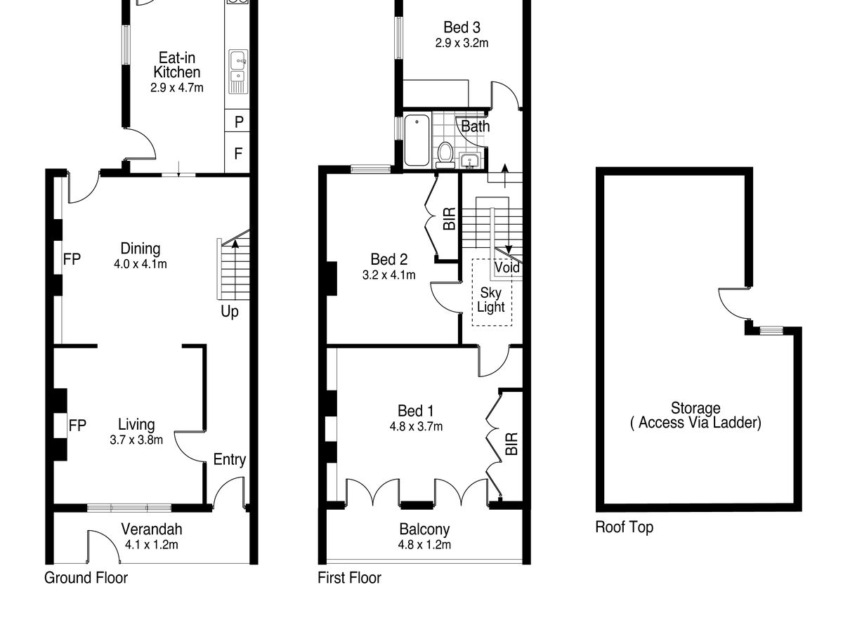
This property is a private oasis with spacious light filled 3 bedroom accommodation (184m2). Boasting a modernised kitchen and bathroom whilst retaining the character and style of a by-gone era.
All conveniently located on a quiet one-way street 100m from Crown Street, 100m to Surry Hills Shopping Village, 50 meters to transport, 150m to the new Light Rail, 500m to Central Train Station and 1km of the CBD. Many fine schools are close by, and this wonderful home is located in the catchment area for Inner Sydney High School. Also easy distance of the finest inner city Café & Restaurant society of Surry Hills Village.
The property features the following:-
- Victorian Terrace home retaining many original features.
- Light filled interiors with flowing living and dining spaces
- Private paved courtyard with lush shading mature trees.
- Modern eat-in kitchen opening onto the courtyard.
- Unique shared swimming pool and outdoor entertaining area.
- Full width master bedroom with BIR & French doors onto balcony.
- Modern bathroom.
- Cool white interiors with light filled central skylight.
- Original timber floors, fireplaces and high ceilings.
- Huge attic storage with potential for a 3rd level (STSA/STCA)
- The finest inner city lifestyle on offer with valuable renovation potential.
- Balcony
- Courtyard
- Fully Fenced
- Outdoor Entertainment Area
- Swimming Pool - In Ground
- Broadband Internet Available
- Built-in Wardrobes
- Dishwasher
- Floorboards








