This Executive one bedroom apartment with valuable parking is located on the second floor of King Street Wharf a well located Strata Building with a five star reputation. This apartment truly provides a great city lifestyle being within 50 meters of restaurants, bars and cafes, not to mention the harbour front. The apartment features the following:-
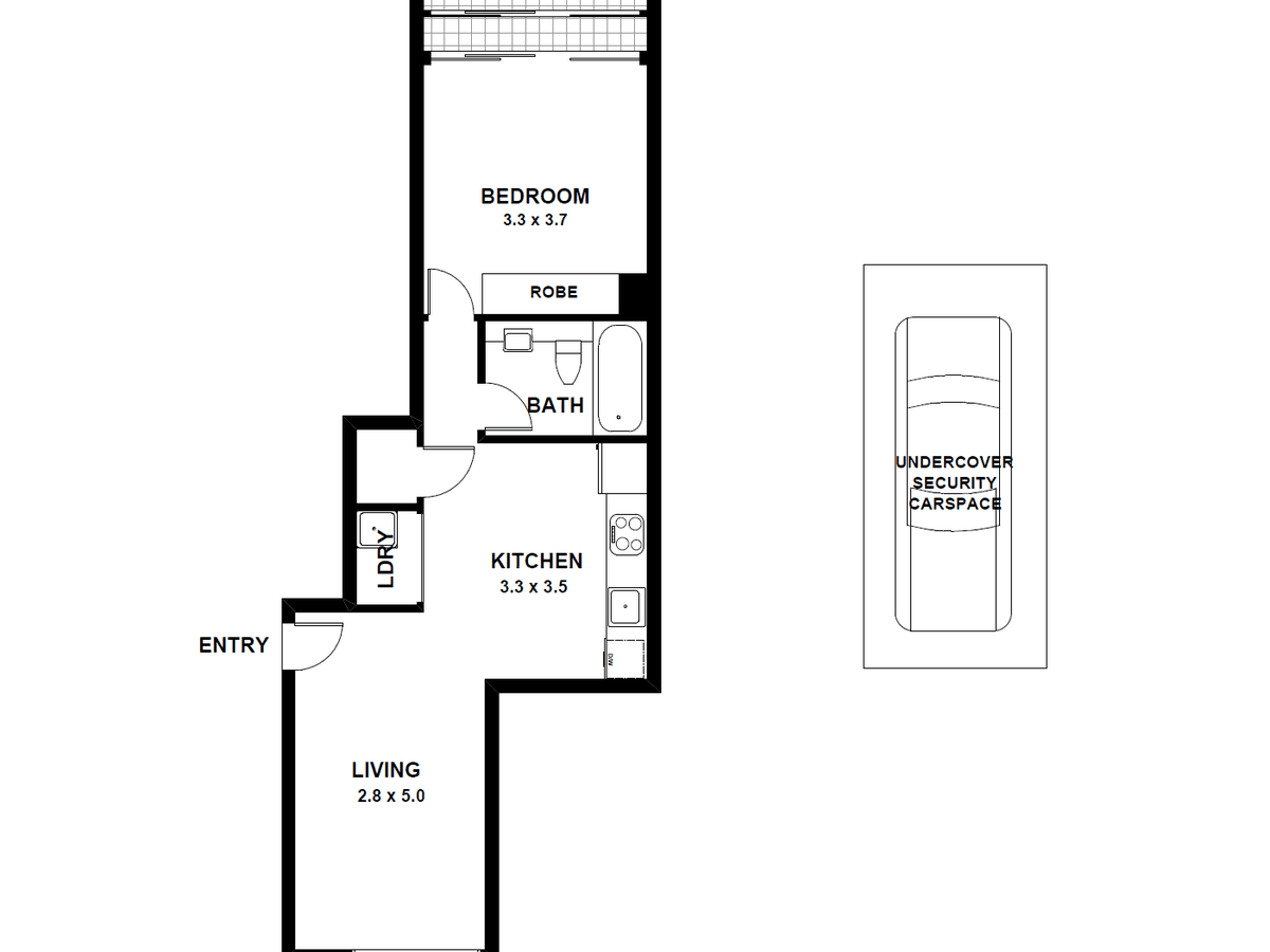
Well proportioned 1 bedroom accommodation (51m2)
Security undercover carspace
Wonderful contemporary style
Separate Lounge & Dining
Juliette style Balcony
Strong Rental History with Current Rent at $571 per week
Lease expires Jan 2010
Small
Security Building
"The Link" with only 6 apartments
Leafy Aspect
Eat In Kitchen with Caesar benchtop & glass splashback
Gas cooking and all mod cons
Spacious Bedrooms with Built in Robes & double glazing
Contemporary full bathroom with mosaics
Reverse cycle air conditioning
Internal Laundry
- Reverse Cycle Air Conditioning
- Balcony
- Built-in Wardrobes
















