PLEASE CONTACT AGENT 0414 618 505 TO ARRANGE PRIVATE INSPECTION
On the market for the first time in more than 50 years, this much loved property offers a coveted tree change opportunity for those seeking quality accommodation for easy family friendly living plus income.
Built 25 years ago by local master tradespeople, this spacious character filled 5 bedroom home with separate one bedroom apartment is peacefully located in an elevated position amongst manicured gardens and gentle rolling hills. There are stunning views in every direction.
Boasting an enviable location being only 2km from the Town Centre of Canowindra and 62km (40 minutes) from the major rural centre and transport hub of Orange. 304km from Sydney and 230km from Canberra.
Canowindra is famous as the hot air balloon capital of Australia, the Age of Fishes Museum with world class fossils, an established café/pub scene along with all the ingredients that make for a vibrant country town. It even has its own hospital …
The property features the following:
• Land size 15 Acres (approx.)
• Established manicured lawns and flowering garden beds.
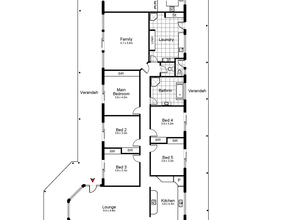
• Family Friendly Floorplan
• Five generous bedrooms all with Built in robes.
• Self contained/Separate One Bedroom Apartment.
• Four Bay Shed.
• Three fenced paddocks.
• Town water supply
• Views to the Nangar Mountain Range and Mount Canobolas
• Formal and informal Living/Dining rooms with vaulted ceiling
• Separate Parents Retreat with combustion fireplace
• Covered outdoor entertaining areas under bullnose veranda
• Gourmet Kitchen.
• Separate laundry with Shower
• Ducted evaporative cooling & underfloor heating.
• A superior property and location to make your tree change perfect and complete.
OFFERS INVITED
- Evaporative Cooling
- Open Fireplace
- Fully Fenced
- Outdoor Entertainment Area
- Shed
- Water Tank












































